320.000,00 €
- Sobe: 3
- Kopalnice: 1
- Nadstropja: 1
- Velikost: 160 m²
- Velikost posestva: 700 m²
- Leto gradnje: 2025
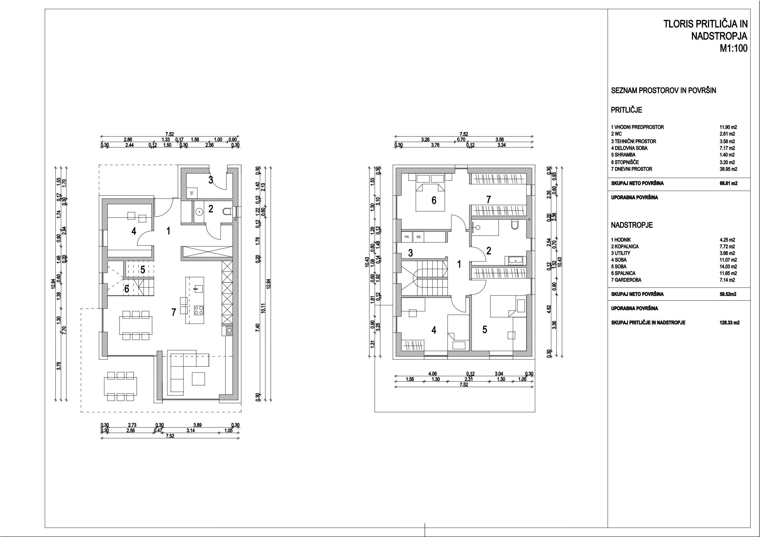
Opis
Moderna samostojna hiša na Goriškem, v naselju Prvačina. Zgrajena v letu 2025, prodaja se v III. podaljšani gradbeni fazi. Objekt je zaprt in konstrukcijsko zaključen vključno s predelnimi stenami, streha je pokrita, vgrajeno stavbno pohištvo in izdelana fasada, pripravljeno za notranje inštalacije in zaključna dela, kupec pa lahko notranjost dokonča po lastnih željah in potrebah.
Stoji na parceli 700m2, stanovanjska hiša ima skupno 160 m2, od tega 128 m2 notranjih površin ter cca. 30 m2 zunanjih površin (terase).
Pritličje (68,76 m2): obsegajo naslednji prostori: vhodni predprostor, WC, kurilnica, delovna soba, shramba, stopnišče ter denvni prostor s kuhinjo in jedilnico z izhodom na teraso.
Nadstropje (59,36m2): hodnik, utility, garderoba, kopalnica, spalnica z lastno garderobo, ter dve sobi z izhodom na teraso
Nahaja se v vasi Prvačina na Primorskem le 15 min vožnje iz mesta Nova Gorica, v bližini 10 min je priključek na avtocesto (Nova Gorica-Ljubljana).
Podatki o nepremičnini:
-novogradnja,
-klasična opečnata gradnja,
-zadnje v vrsti zazidljivo zemljišče na robu vasi na krasnem sončnem terenu z odprtim pogledom na zelene površine,
-svetel in odprt skupen prostor za kuhinjo, jedilnico in dnevno sobo z dvema panoramskima oknoma in izhodom na teraso
-3-slojna termopan okna z roletami na elektro pogon
-16 cm EPS toplotna izolacija na fasadi
-predpriprava za kamin v dnevnem prostoru ter zidan dimnik na strehi
Lokacija

English






